Газовая варочная панель HIBERG VM 7155 Y
Принимаем к оплате

-
Электроподжиг
-
Газ-контроль конфорок
нет
-
Новинка
Да
-
Материал панели
-
Количество конфорок
-
Конфорка WOK
нет
-
Газовых конфорок
-
Чугунные решетки
нет
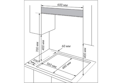
сенсорный таймер чугунные решетки 2 комплекта ручек WOK конфорка газ-контроль автоподжиг конфорок материал поверхности - закаленное стекло 2 комплекта ручек, Таймер отключения газа, ШхГхВ-68.4х51х10, Габариты для встраивания (ШхГ)-56 х 48 см